Stradbroke House
Project type - New build
Celebrating the nostalgia of camping in a light and expressive holiday home
Stradbroke House was designed in collaboration with Gabriel and Elizabeth Poole and built with a clever group of fabricators. Our client wanted a holiday home on South Stradbroke Island where she can enjoy time with friends and family, especially her four grandsons who she wanted “to experience uncomplicated but comfortable camping.”
The expressive, exuberant house comprises two steel-framed pavilions linked by a breezeway. The single-storey western pavilion has an open-plan living, kitchen and dining area extending out to a northern verandah. The two-storey eastern pavilion accommodates the bedrooms and bathrooms. On the ground floor, the exterior walls of the twin rumpus rooms fold down to create four canvas-roofed sleeping pods that evoke the experience of camping. Upstairs, three bedrooms are connected to the ground floor via an internal staircase and an external water slide.
The house is constructed with a lightweight, custom-steel fabrication. Portal frames have raking arms that extend up and beyond the roof line, like tent poles. The verandah awning stretches across the deck to leaning steel columns with built-in hammock seating suspended over the landscape.
The outdoor living room on the north side of the house.
The outdoor living room.
View toward the sleeping pavilion, alcove fully retracted.
Entry bridge from the west (beach) side.
Sleeping alcove fully extended.
Bedroom custom joinery and wardrobe.
Living room, daybed alcove to left. 'Tree of Life' wall sculpture by Elizabeth Poole at right.
Upper level sleeping areas, hanging bird sculpture by Elizabeth Poole.
View into the north-facing kitchen.
Bedroom detail.
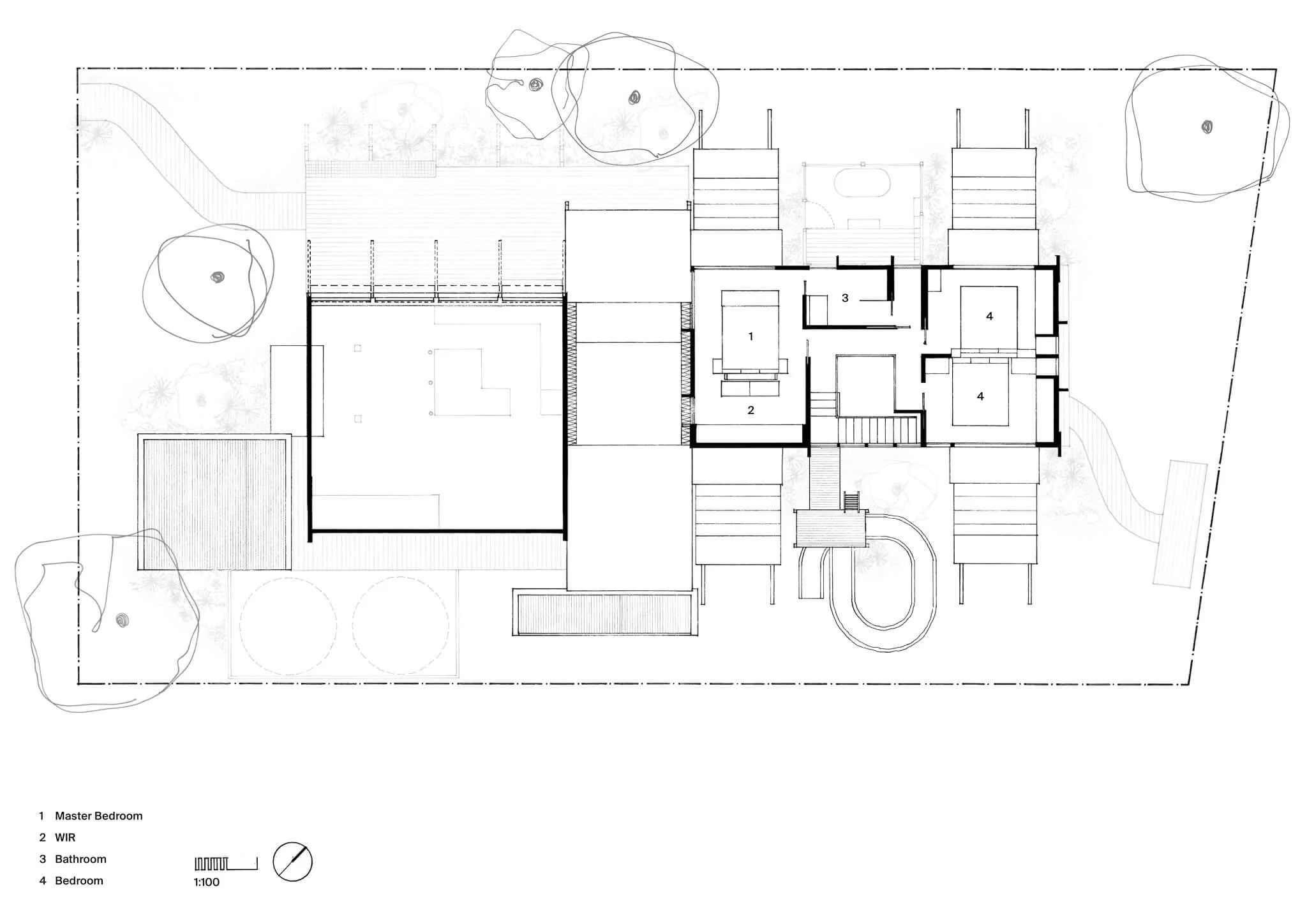
Lower Floorplan. The house is split into two pavilions. A single-level living pavilion toward the beach (west) and a double-storey sleeping pavilion to the east. They are connected by a breezeway.
Upper Floorplan of the sleeping pavilion.
Detail drawing showing the mechanism of retractable alcoves, drawn by Gabriel Poole.
Team
Tim Bennetton, Gabriel Poole, Elizabeth Poole and Simon Martin
Collaborators
Steel: Barry Hamlet of Studio Steel
Builder: Charles Warren Constructions
Structural engineer: Rod Bligh of Bligh Tanner
Cabinetmaker: Des Shield
Canvas: Mike Murray (Creative Canvas and Blinds)
Year Built
2017
Location
South Stradbroke Island, Queensland
Country
Quandamooka People, specifically the Nunukul (or Noonuccal) and Goenpul clans
Photographer
Mindi Cook and Harry Frith
Awards
Queensland Architecture Awards 2018
Robin Dods Award for Residential Architecture, New House
Gold Coast Region, House of the Year
Gold Coast Region, Sustainability Award
State Shortlist, for Sustainable Architecture
Press
Houses, April 2019, April 2019, ‘Trademark Lyricism: Stradbroke House’
Sanctuary Magazine, Issue 45, February 2019, ‘Island Off-Grid’
The Design Files, June 2019, June 2019, ‘The Ultimate Family Beach House’
Get in touch
Every project starts with a conversation. We’d love to hear what you’re planning, whether it’s a new home, a renovation or just an early idea.